Rv Rental Windsor Locks Ct . Find more class a, class c, class. discover the best rv rental, motorhome and camper options in windsor locks, ct starting at $57! affordable rv rentals in windsor locks, ct mean more money to spend doing the things you love. 2023 class c motor home. 2021 kz sportsmen travel trailer rental in windsor locks, ct | outdoorsy. Class b • windsor locks, ct. 2023 class c motor home. rv rentals in ct from long view rv. motorhome rv rentals in windsor locks, ct. find a rv rental near me in windsor locks, ct! Are you searching to rent a particular rv at a certain price range or a specific year. We are currently offering class c rv rentals. Thor motor coach thor geneva. These motorhomes are a great choice for those. 2021 kz sportsmen classic 181bh.
from www.flickr.com
2021 kz sportsmen classic 181bh. 2021 kz sportsmen travel trailer rental in windsor locks, ct | outdoorsy. Class b • windsor locks, ct. find a rv rental near me in windsor locks, ct! Are you searching to rent a particular rv at a certain price range or a specific year. Thor motor coach thor geneva. 2023 class c motor home. motorhome rv rentals in windsor locks, ct. rv rental windsor locks, ct. Find more class a, class c, class.
Windsor Locks, CT Rolleiflex Automat; Ilford HP5+ ldhilljr Flickr
Rv Rental Windsor Locks Ct rv rental windsor locks, ct. 2023 class c motor home. motorhome rv rentals in windsor locks, ct. Find more class a, class c, class. 2021 kz sportsmen classic 181bh. We are currently offering class c rv rentals. These motorhomes are a great choice for those. 2023 class c motor home. rv rentals in ct from long view rv. Thor motor coach thor geneva. find a rv rental near me in windsor locks, ct! Are you searching to rent a particular rv at a certain price range or a specific year. rv rental windsor locks, ct. Class b • windsor locks, ct. affordable rv rentals in windsor locks, ct mean more money to spend doing the things you love. discover the best rv rental, motorhome and camper options in windsor locks, ct starting at $57!
From windsorlocksct.org
Main Street Revitalization Project Town of Windsor Locks, Connecticut Rv Rental Windsor Locks Ct 2023 class c motor home. 2023 class c motor home. Are you searching to rent a particular rv at a certain price range or a specific year. motorhome rv rentals in windsor locks, ct. affordable rv rentals in windsor locks, ct mean more money to spend doing the things you love. 2021 kz sportsmen travel trailer rental. Rv Rental Windsor Locks Ct.
From windsorlocks.ias-clt.com
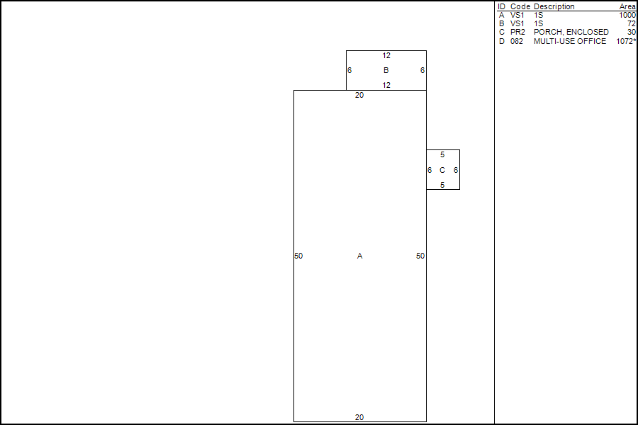
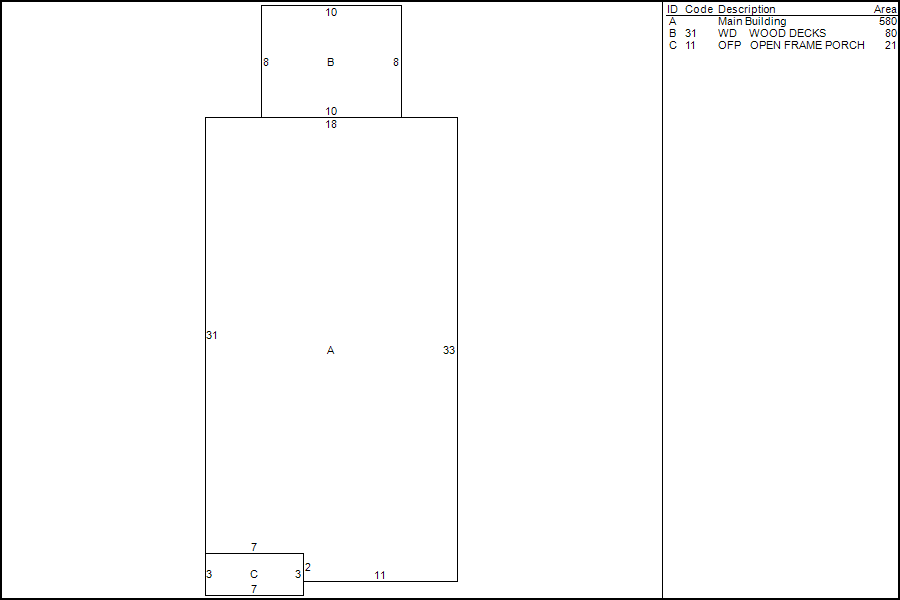
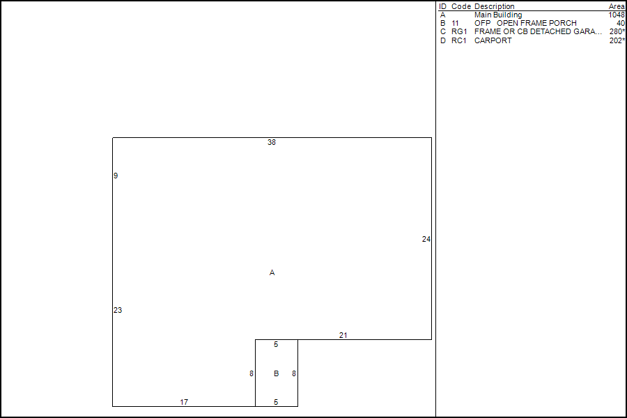
Windsor Locks, CT Assessor Database Rv Rental Windsor Locks Ct We are currently offering class c rv rentals. Thor motor coach thor geneva. motorhome rv rentals in windsor locks, ct. discover the best rv rental, motorhome and camper options in windsor locks, ct starting at $57! Find more class a, class c, class. 2023 class c motor home. find a rv rental near me in windsor locks,. Rv Rental Windsor Locks Ct.
From www.trulia.com
60 Dibble Hollow Ln 60, Windsor Locks, CT 06096 Trulia Rv Rental Windsor Locks Ct motorhome rv rentals in windsor locks, ct. Are you searching to rent a particular rv at a certain price range or a specific year. rv rentals in ct from long view rv. 2021 kz sportsmen travel trailer rental in windsor locks, ct | outdoorsy. affordable rv rentals in windsor locks, ct mean more money to spend. Rv Rental Windsor Locks Ct.
From www.flickr.com
Windsor Lock Station The Walsh Group Flickr Rv Rental Windsor Locks Ct Thor motor coach thor geneva. These motorhomes are a great choice for those. motorhome rv rentals in windsor locks, ct. rv rentals in ct from long view rv. Class b • windsor locks, ct. 2023 class c motor home. 2021 kz sportsmen travel trailer rental in windsor locks, ct | outdoorsy. discover the best rv rental,. Rv Rental Windsor Locks Ct.
From www.apartments.com
276 Mary Webb Rd, Windsor Locks, CT 06096 House Rental in Windsor Rv Rental Windsor Locks Ct Find more class a, class c, class. Thor motor coach thor geneva. 2023 class c motor home. We are currently offering class c rv rentals. 2021 kz sportsmen travel trailer rental in windsor locks, ct | outdoorsy. Class b • windsor locks, ct. discover the best rv rental, motorhome and camper options in windsor locks, ct starting at. Rv Rental Windsor Locks Ct.
From windsorlocks.ias-clt.com
Windsor Locks, CT Assessor Database Rv Rental Windsor Locks Ct rv rental windsor locks, ct. 2021 kz sportsmen classic 181bh. motorhome rv rentals in windsor locks, ct. Thor motor coach thor geneva. discover the best rv rental, motorhome and camper options in windsor locks, ct starting at $57! We are currently offering class c rv rentals. 2023 class c motor home. Find more class a, class c,. Rv Rental Windsor Locks Ct.
From s3.amazonaws.com
Lifeproof case for ipad mini 2, new life windsor locks ct 2014, id card Rv Rental Windsor Locks Ct 2023 class c motor home. 2021 kz sportsmen classic 181bh. Thor motor coach thor geneva. find a rv rental near me in windsor locks, ct! We are currently offering class c rv rentals. discover the best rv rental, motorhome and camper options in windsor locks, ct starting at $57! rv rental windsor locks, ct. affordable rv. Rv Rental Windsor Locks Ct.
From patch.com
Picture Windsor Locks Then And Now Windsor Locks, CT Patch Rv Rental Windsor Locks Ct 2021 kz sportsmen classic 181bh. rv rental windsor locks, ct. Find more class a, class c, class. 2023 class c motor home. find a rv rental near me in windsor locks, ct! affordable rv rentals in windsor locks, ct mean more money to spend doing the things you love. These motorhomes are a great choice for those.. Rv Rental Windsor Locks Ct.
From www.apartments.com
6 Concorde Way Unit A2, Windsor Locks, CT 06096 Condo for Rent in Rv Rental Windsor Locks Ct These motorhomes are a great choice for those. 2021 kz sportsmen classic 181bh. Class b • windsor locks, ct. find a rv rental near me in windsor locks, ct! rv rental windsor locks, ct. 2021 kz sportsmen travel trailer rental in windsor locks, ct | outdoorsy. motorhome rv rentals in windsor locks, ct. Find more class. Rv Rental Windsor Locks Ct.
From www.pinterest.com
an old building with a sign in front of it that says, virginia house by Rv Rental Windsor Locks Ct These motorhomes are a great choice for those. Are you searching to rent a particular rv at a certain price range or a specific year. rv rental windsor locks, ct. find a rv rental near me in windsor locks, ct! Find more class a, class c, class. discover the best rv rental, motorhome and camper options in. Rv Rental Windsor Locks Ct.
From windsorlocks.ias-clt.com
Windsor Locks, CT Assessor Database Rv Rental Windsor Locks Ct affordable rv rentals in windsor locks, ct mean more money to spend doing the things you love. Thor motor coach thor geneva. 2023 class c motor home. These motorhomes are a great choice for those. Class b • windsor locks, ct. 2021 kz sportsmen classic 181bh. find a rv rental near me in windsor locks, ct! rv. Rv Rental Windsor Locks Ct.
From www.apartments.com
10 Maple Ave, Windsor Locks, CT 06096 Townhome Rentals in Windsor Rv Rental Windsor Locks Ct Class b • windsor locks, ct. rv rental windsor locks, ct. discover the best rv rental, motorhome and camper options in windsor locks, ct starting at $57! Find more class a, class c, class. Thor motor coach thor geneva. motorhome rv rentals in windsor locks, ct. affordable rv rentals in windsor locks, ct mean more money. Rv Rental Windsor Locks Ct.
From windsorlocks.ias-clt.com
Windsor Locks, CT Assessor Database Rv Rental Windsor Locks Ct affordable rv rentals in windsor locks, ct mean more money to spend doing the things you love. rv rental windsor locks, ct. Thor motor coach thor geneva. We are currently offering class c rv rentals. rv rentals in ct from long view rv. Find more class a, class c, class. find a rv rental near me. Rv Rental Windsor Locks Ct.
From windsorlocks.ias-clt.com
Windsor Locks, CT Assessor Database Rv Rental Windsor Locks Ct rv rentals in ct from long view rv. We are currently offering class c rv rentals. discover the best rv rental, motorhome and camper options in windsor locks, ct starting at $57! find a rv rental near me in windsor locks, ct! motorhome rv rentals in windsor locks, ct. Find more class a, class c, class.. Rv Rental Windsor Locks Ct.
From windsorlocks.ias-clt.com
Windsor Locks, CT Assessor Database Rv Rental Windsor Locks Ct rv rentals in ct from long view rv. 2021 kz sportsmen travel trailer rental in windsor locks, ct | outdoorsy. 2023 class c motor home. Class b • windsor locks, ct. 2023 class c motor home. find a rv rental near me in windsor locks, ct! Thor motor coach thor geneva. Find more class a, class c,. Rv Rental Windsor Locks Ct.
From www.youtube.com
Long View RV Superstore in Windsor Locks, CT YouTube Rv Rental Windsor Locks Ct Thor motor coach thor geneva. affordable rv rentals in windsor locks, ct mean more money to spend doing the things you love. 2023 class c motor home. 2021 kz sportsmen travel trailer rental in windsor locks, ct | outdoorsy. Class b • windsor locks, ct. rv rentals in ct from long view rv. motorhome rv rentals. Rv Rental Windsor Locks Ct.
From patch.com
Windsor Locks, East Windsor Rental Properties Available Windsor Locks Rv Rental Windsor Locks Ct Find more class a, class c, class. discover the best rv rental, motorhome and camper options in windsor locks, ct starting at $57! We are currently offering class c rv rentals. 2021 kz sportsmen classic 181bh. These motorhomes are a great choice for those. Class b • windsor locks, ct. motorhome rv rentals in windsor locks, ct. 2023. Rv Rental Windsor Locks Ct.
From windsorlocks.ias-clt.com
Windsor Locks, CT Assessor Database Rv Rental Windsor Locks Ct We are currently offering class c rv rentals. 2023 class c motor home. 2021 kz sportsmen travel trailer rental in windsor locks, ct | outdoorsy. discover the best rv rental, motorhome and camper options in windsor locks, ct starting at $57! Class b • windsor locks, ct. These motorhomes are a great choice for those. affordable rv. Rv Rental Windsor Locks Ct.